반응형

📌 1. 사업 개요 (핵심 요약)
- 위치 : 부산진구 가야동 410번지 일원
- 규모 : 지하 5층 ~ 지상 최고 29층~37층, 18개동
- 세대수 : 1,901세대 대단지
- 시공사 : 현대산업개발 + 대우건설 컨소시엄
- 단지명 : 더 다이너스티 가야
👉 부산 도심권에서 보기 드문 초대형 브랜드 재개발 단지
✔ 조합원 비율 약 35% 수준 → 사업성 매우 우수

📌 2. 입지 분석 (핵심 경쟁력)
✔ 교통
- 지하철 2호선 가야역 + 동의대역 더블 역세권
- 도보 약 5분 거리
- 서면까지 2정거장 → 사실상 생활권 공유
✔ 도로망
- 가야대로 / 수정터널 / 백양산터널 접근
- → 부산 전역 이동 편리
✔ 학군
- 가야초 (초품아 수준)
- 가야중·고, 동의대 인접
✔ 생활 인프라
- 롯데백화점, 롯데마트, 백병원
- 서면 상권 5분 생활권
👉 한마디 정리
👉 “서면 생활권 + 역세권 + 초품아” 완성형 입지
📌 3. 특장점 (이 단지가 뜨는 이유)
- ✔ ① 스카이라운지 + 랜드마크 설계
- 외관특화 및 스카이라운지
- ✔ ② 글로벌 설계 (외관 특화)
- SMDP 외관 디자인 적용
- ✔ ③ 세대당 주차 1.5대 수준
- 부산 재개발 중 상위급
- ✔ ④ 대형 평형 확대
- 84㎡ 이상 중대형 비중 확대
- ✔ ⑤ 사업성 최상급
- 조합원 비율 낮음 → 일반분양 많음
👉 핵심
👉 “상품성 + 사업성 둘 다 잡은 재개발”

📌 4. 단지 배치도 특징
- 1단지와 2단지로 나누어짐. 총 18개동 대단지
- 중앙광장 + 테마정원 구성
- 동간 거리 확보 → 개방감 우수
- 커뮤니티 중심 설계
👉 “전형적인 최신 대단지 프리미엄 구조”



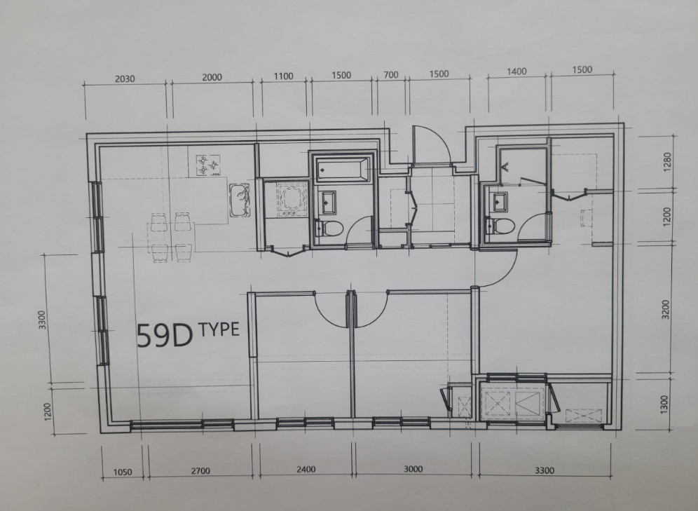
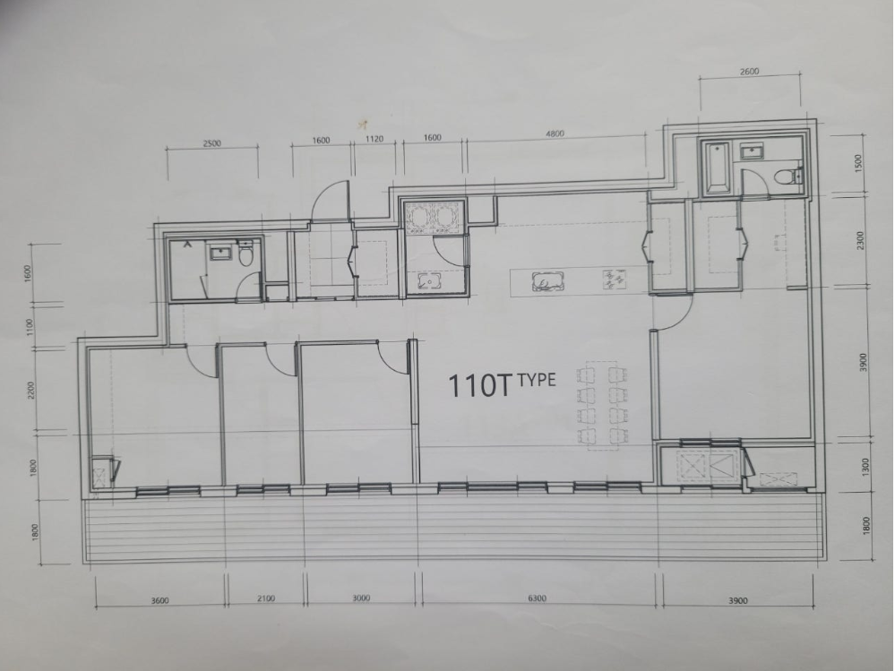
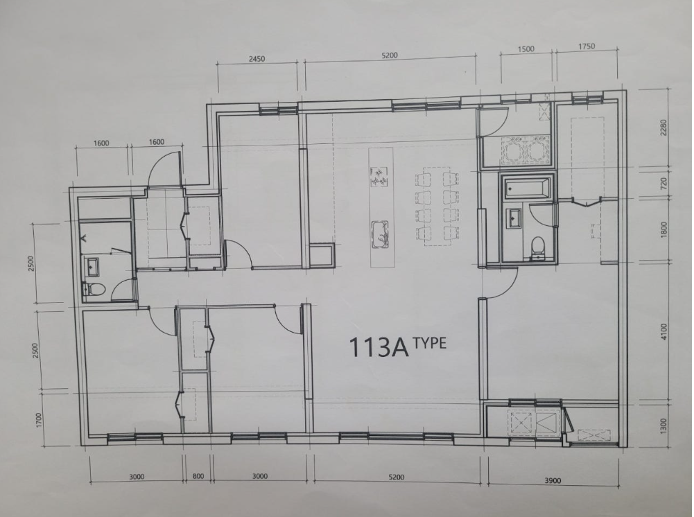
📌 5. 평면도
✔ 주요 타입
- 59㎡ / 77㎡ / 84㎡ / 110㎡ / 113㎡
✔ 특징
- 84㎡ : 4Bay 판상형 중심
- 중대형 비중 높음
- 일부 테라스 및 특화 평면
👉 실거주 만족도 높은 구조
















📌 6. 예상 분양가
✔ 조합원 기준 (참고)
- 84㎡ : 약 5억 수준
✔ 현재 시장 기준 예상
👉 일반분양 예상
- 59㎡ : 약 7억
- 84㎡ : 약 10억대 예상
- 110㎡ 이상 : 15억 이상 가능성
👉 이유
- 부산 신축 분양가 급등 반영
- 인근 신축 대비 가격 상승 불가피
📌 7. 일반분양 일정
✔ 현재 진행 상황
- 관리처분인가 완료
- 이주 완료 → 철거 진행 중
✔ 향후 일정 (예상)
- 2026년 : 착공
- 2027~2028년 : 일반분양 가능성
- 2029~2030년 : 입주 예상
👉 일반분양은 아직 미정 (핵심 체크 필요)
📌 8. 투자 포인트 정리
- ✔ 부산의 지리적 중심 입지
- ✔ 서면 생활권 공유
- ✔ 역세권 + 초품아
- ✔ 대단지 브랜드 프리미엄
- ✔ 사업성 매우 우수
- ✔ 음식물 쓰레기 이송설비, 일반아파트 대비 10cm 높은 천장고, 외산 주방가구, 수영장 등 고급스러운 커뮤니티로 준 하이앤드급 아파트
👉 한줄 정리
👉 “부산 재개발 TOP급 입지 + 상품성 단지”

📌 9. 총평
👉 더 다이너스티 가야는 단순 재개발이 아니라
“서면 생활권을 흡수하는 부산 핵심 랜드마크 단지”
반응형